3
$1 Rent
Listed 232 days ago
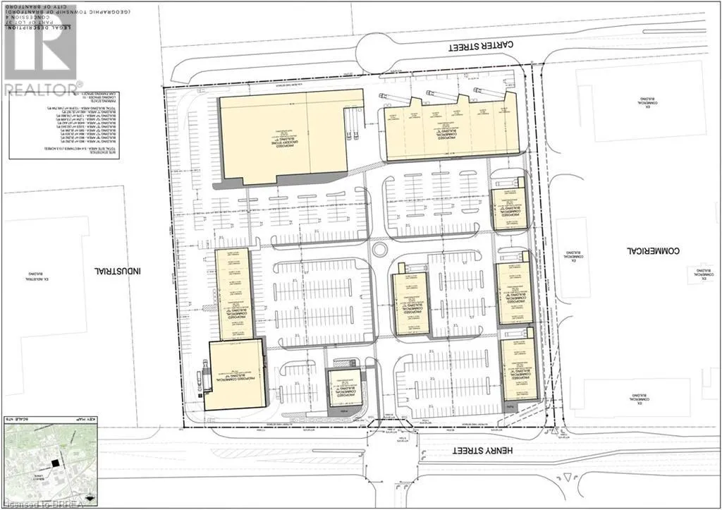
234 HENRY Street
· 0
· 0.0
· 0
· 50000
Key Facts
Key facts for 234 HENRY Street
Property Type
Commercial
Parking
Garage: No, 0 parking
MLS #
40689396
Size
50000 sqft
Basement
None
Listed on
-
Lot size
-
Tax
-
Days on Market
-
Year Built
-
Maintenance Fee
-
Description
New to-be-constructed 13 acre Retail Site on busy thoroughfare in one of Brantford’s sought after Retail destinations. Just off Brantford's main traffic artery with approximately 31,800 vehicles passing by each day! This incredible site is minutes from multiple residential neighbourhoods and Highwa...y 403. Shadow anchored by Lowes. Adaptable plans and square footages available ranging from 2,500sf to 100,000sf. Broad Major Commercial Centre Zoning MCC-5, which allows many commercial possibilities! (id:10452)
Similar Properties (No results)
Listing courtesy of: Re/Max Twin City Realty Inc
This REALTOR.ca listing content is owned and licensed by REALTOR® members of The Canadian Real Estate Association.